Local - Villa Crespo

Av. Juan B Justo Al 3300 , Villa Crespo, Capital Federal, Argentina

Local / Venta

usd 370.000


Datos Rápidos

Sup Total: 160 m² | Sup. Cubierta: 160 m²

Generales

Cocina
Grupo electrógeno
Luz eléctrica
Sistema contra incendio
Probador
Gas natural
Agua corriente
Línea telefónica
Calefacción
Acceso a internet
Seguridad
Superficie cubierta: 160 m²
Baños: 0
Cocheras: 0
Superficie total: 160 m²
Operación: Venta
Inmueble: Local

Descripción

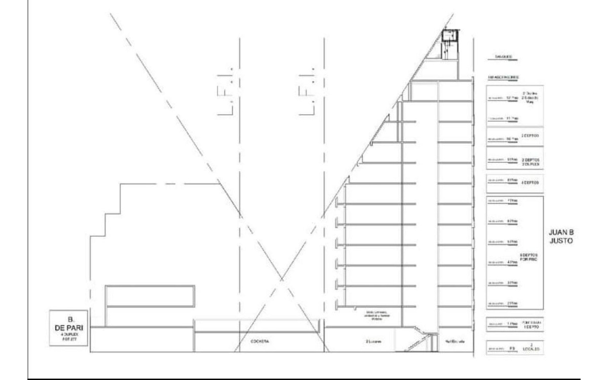
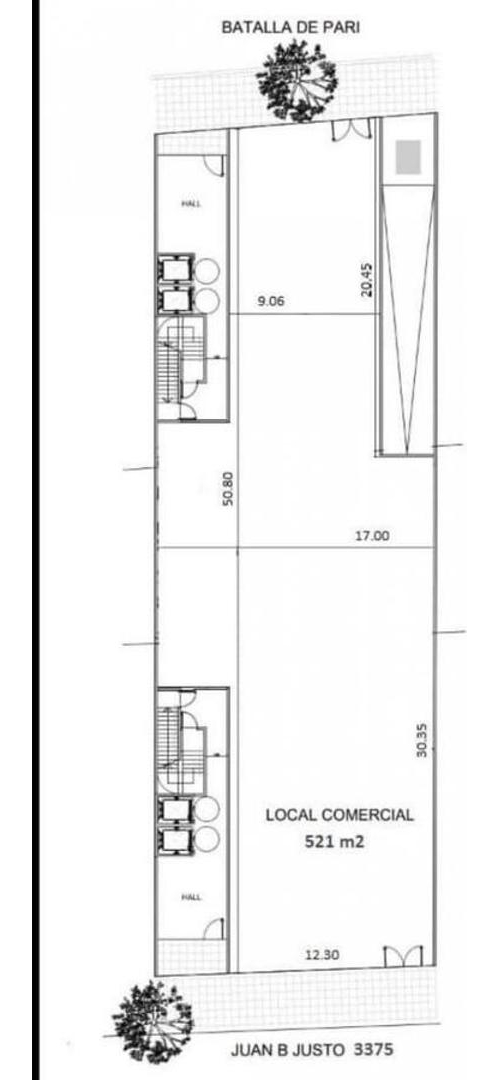
Excelentes local en construcción.

El local es de 8 x 20 dando un total de 160m2.
Están en planta baja del edificio, cuenta con varias unidades.
La posesión es para aproximado el mes de marzo 2022.

Está estrategicamente ubicado sobre una avenida principal de Villa Crespo.
Tiene fácil acceso y medios de transporte publico cerca.


Todas las propiedades que figuran en mi perfil se encuentran a cargo del profesional matriculado de la oficina, la intermediación y la conclusión de las operaciones serán llevadas exclusivamente por él. Matrícula N° 7437 CUCICBA
y 2903 CMCPDJM

Información Adicional:
Gas natural

Consultar sobre esta propiedad

Roma Propiedades
11 45331244

Generales

Cocina
Grupo electrógeno
Luz eléctrica
Sistema contra incendio
Probador
Gas natural
Agua corriente
Línea telefónica
Calefacción
Acceso a internet
Seguridad
Superficie cubierta: 160 m²
Baños: 0
Cocheras: 0
Superficie total: 160 m²
Operación: Venta
Inmueble: Local

Ubicación

Roma Propiedades trabaja con Ela Gestión - Sistema Avanzado Para Profesionales Inmobiliarios info@elagestion.com.ar | www.elagestion.com.ar | © 2026 Ela Gestión Marca registrada. Todos los derechos reservados.

trabajando....